Property 13 from 16
Next property
Previous property
Back
Back
Next property
Previous property
BackBerlin: + Ready to move in + Pannierstrasse + Charming Altbau
Property ID: 220709
Options
Options
Basic information
Address:
Pannierstrasse 58
DE-12047 Berlin
DE-12047 Berlin
Price:
Price on request
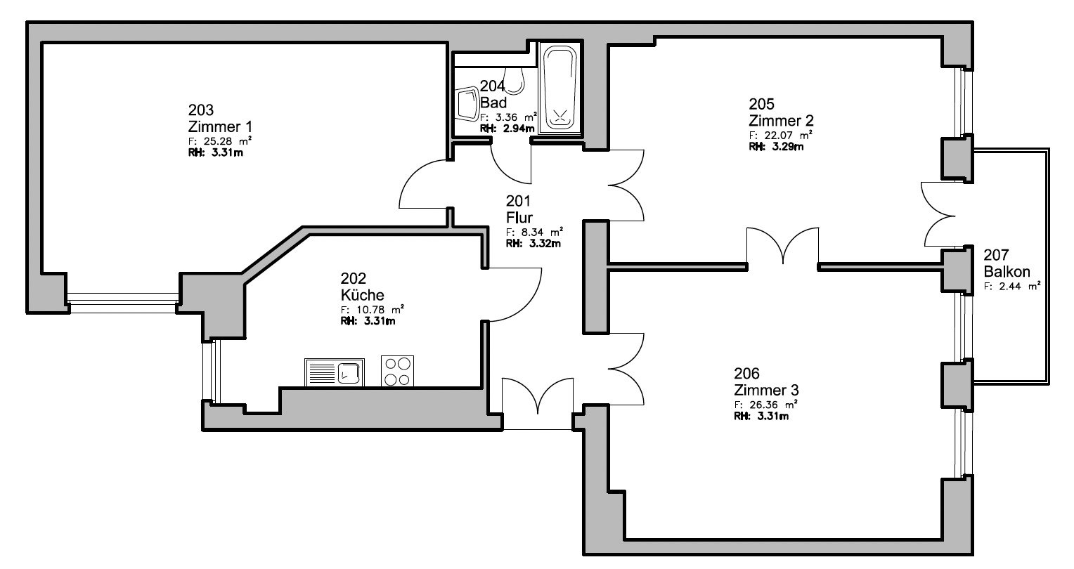
Living space:
99 sq. m.
No. of rooms:
3
Details
Details
Type of apartment:
Single storey apartment
Storey:
1
Number of floors:
5
Subject to commission:
yes
Kitchen:
Fitted kitchen
Bathroom:
Bathtub
Balcony:
1
Basement:
yes
Last renovation/ refurbishment:
2018
Quality of fittings:
Regular
Year of construction:
1900
Monthly costs all-inclusive:
382 €
Floor covering:
Floorboards
Heating:
Central heating
Type of heating system:
District heating
Type of energy certificate:
consumption certificate
Energy consumption value:
118 kWh/(m²*a)
Energy consumption for hot water included:
yes
Your contact person
Back





















