Objekt 14 von 14
Vorheriges Objekt
Zurück
code
Zurück
Vorheriges Objekt
ZurückBerlin: + Kreuzkölln /Reuterkiez + Altbau + WG tauglich + 4 Zimmer
Objekt-Nr.: 2190504
Optionen
Optionen
Basisinformationen
Adresse:
Hobrechtstraße 63
DE-12047 Berlin
DE-12047 Berlin
Stadtteil:
Neukölln
Preis:
469.000 €
Wohnfläche ca.:
87 m²
Zimmeranzahl:
4
Weitere Informationen
Weitere Informationen
Wohnungstyp:
Erdgeschoss
Etagenanzahl:
4
Provisionspflichtig:
ja
Provision:
3,57 % inklusive MwST
Küche:
Einbauküche
Bad:
Dusche, Wanne, Fenster
Anzahl Badezimmer:
1
Terrasse:
1
Keller:
ja
Letzte Modernisierung/ Sanierung:
2012
Qualität der Ausstattung:
normal
Baujahr:
1910
Hausgeld:
166 €
Bodenbelag:
Laminat
Zustand:
gepflegt
Heizung:
Etagenheizung
Befeuerungsart:
Gas
Energieausweistyp:
Bedarfsausweis - gültig vom 21.02.2025 bis 20.02.2035
Energieeffizienz-Klasse:
D
Endenergiebedarf:
101 kWh/(m²*a)
Beschreibung
Beschreibung
Objektbeschreibung:
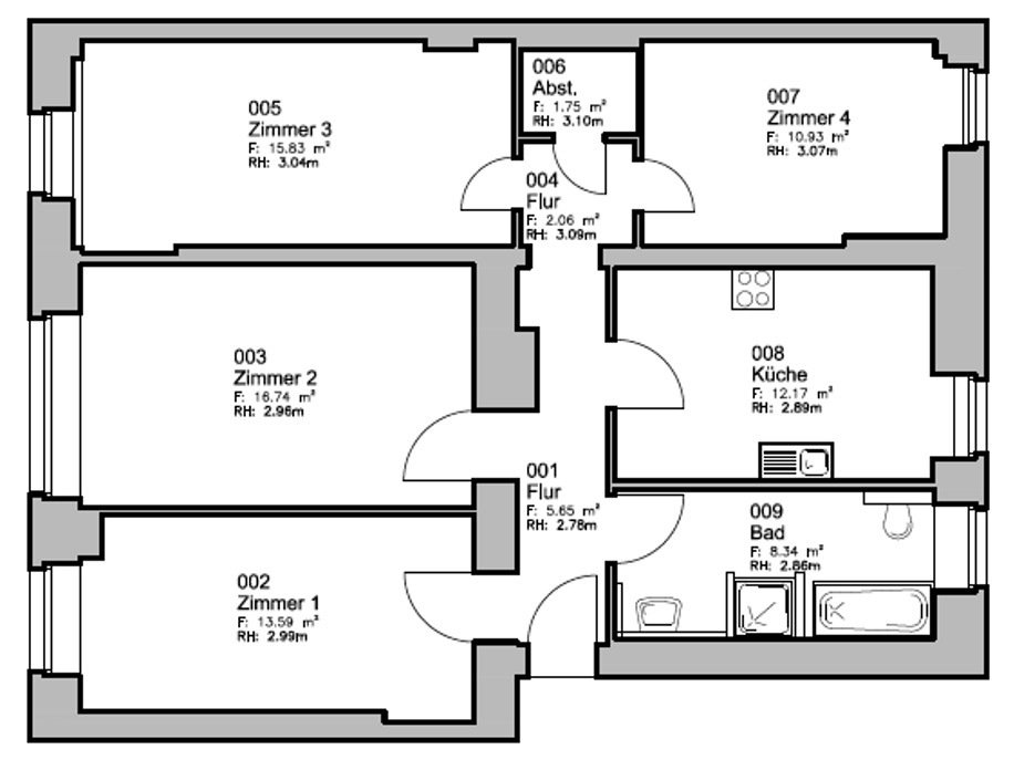
Bezugsfreie Altbauwohnung mitten in Kreuzkölln zwischen Maybachufer und Sonnenallee gelegen.
Die Wohnung liegt im Vorderhaus eines Altbaus der Jahrhundertwende und hat einen sehr praktischen Grundriss mit vier Wohnräumen, Küche, Wannenbad, Flur und Abstellraum. Drei Räume sind straßenseitig gelegen. Küche, Bad sowie ein weiterer Raum orientieren sich am begrünten Innenhof.
Die Wohnung hat eine sehr gute Raumaufteilung bei 87 qm, ideal für eine Familie oder eine 4-er-WG.
Die Wohnung liegt im Vorderhaus eines Altbaus der Jahrhundertwende und hat einen sehr praktischen Grundriss mit vier Wohnräumen, Küche, Wannenbad, Flur und Abstellraum. Drei Räume sind straßenseitig gelegen. Küche, Bad sowie ein weiterer Raum orientieren sich am begrünten Innenhof.
Die Wohnung hat eine sehr gute Raumaufteilung bei 87 qm, ideal für eine Familie oder eine 4-er-WG.
Ausstattung:
- praktischer Grundriss
- vier Wohnräume (kein Durchgangszimmer!)
- hohe Decken
- Bad mit Dusche, Wanne und Fenster
- Einbauküche
- Gastherme für Heizung
- Durchlauferhitzer für Warmwasser
- Abstellraum vorhanden
- Kellerraum vorhanden
- bezugsfrei
- Verkauf im IST-Zustand
- vier Wohnräume (kein Durchgangszimmer!)
- hohe Decken
- Bad mit Dusche, Wanne und Fenster
- Einbauküche
- Gastherme für Heizung
- Durchlauferhitzer für Warmwasser
- Abstellraum vorhanden
- Kellerraum vorhanden
- bezugsfrei
- Verkauf im IST-Zustand
Lage:
Szenelage!
Nordneukölln zwischen Gräfe- und Reuterkiez, zwischen Maybachufer und Hasenheide. Viele kleine Cafés, Restaurants, Galerien und Läden befinden sich in der Nachbarschaft. Das Angebot ist vielfältig. Am Maybachufer findet jeweils am Dienstag und Freitag der bekannte Wochenmarkt statt. Am Wochenende lädt der Design- und Kunstmarkt zum Flanieren ein.
Die U-Bahnlinien 7 und 8 sorgen für eine verkehrstechnisch optimale Anbindung:
Stationen Hermannplatz oder Schönleinstraße.
Nordneukölln zwischen Gräfe- und Reuterkiez, zwischen Maybachufer und Hasenheide. Viele kleine Cafés, Restaurants, Galerien und Läden befinden sich in der Nachbarschaft. Das Angebot ist vielfältig. Am Maybachufer findet jeweils am Dienstag und Freitag der bekannte Wochenmarkt statt. Am Wochenende lädt der Design- und Kunstmarkt zum Flanieren ein.
Die U-Bahnlinien 7 und 8 sorgen für eine verkehrstechnisch optimale Anbindung:
Stationen Hermannplatz oder Schönleinstraße.
Sonstiges:
Die Wohnung verfügt über ein schmales Sondernutzungsrecht im Innenhof, welches sich über die ganze Breite der Wohnungsrückseite erstreckt.
Provision:
Für den Nachweis und die Vermittlung eines Kaufvertrages dieser Immobilie ist eine Maklerprovision in Höhe von 3 % des Kaufpreises zzgl. 19 % gesetzlicher MwSt. zu zahlen. Der Verkäufer zahlt der Firma Berlinpoint Immobilien GmbH eine Provision in gleicher Höhe. Der Anspruch ist fällig mit der Unterzeichnung eines notariellen Kaufvertrages zwischen Verkäufer und Käufer, zahlbar innerhalb von 14 Tagen nach Rechnungslegung.
Anmerkung:
Die in unseren Angeboten, Nachweisen und sonstigen Mitteilungen und herausgegebenen Informationen gemachten Angaben beruhen auf den Informationen, die uns von Verkäufern, Vermietern oder Dritten mitgeteilt wurden. Für die Richtigkeit und Vollständigkeit der Angaben kann keine Gewähr bzw. Haftung übernommen werden. Ein Zwischenverkauf und Irrtümer sind vorbehalten.
Verbraucherinformation:
Online-Streitbeilegung gemäß Art. 14 Abs. 1 ODR-VO: Die Europäische Kommission stellt eine Plattform zur Online-Streitbeilegung (OS) bereit, die Sie hier finden: https://ec.europa.eu/consumers/odr
Verbraucherinformation:
Online-Streitbeilegung gemäß Art. 14 Abs. 1 ODR-VO: Die Europäische Kommission stellt eine Plattform zur Online-Streitbeilegung (OS) bereit, die Sie hier finden: https://ec.europa.eu/consumers/odr
AGB:
Wir weisen auf unsere Allgemeinen Geschäftsbedingungen hin. Diese Geschäftsbedingungen werden zusammen mit der Exposébeschreibung Bestandteil der beiderseitigen Vereinbarungen. Durch weitere Inanspruchnahme unserer Leistungen erklären Sie die Kenntnis und Ihr Einverständnis.
Ihr Ansprechpartner
Zurück





















