Objekt 7 von 35
Nächstes Objekt
Vorheriges Objekt
Zurück zur Übersicht
code
Zurück zur Übersicht
Nächstes Objekt
Vorheriges Objekt
Zurück zur ÜbersichtBerlin: + Pannierstrasse + Sonnig und ruhig + 3.5 Zi Altbau + Aussicht ins Grüne + optional Balkon
Objekt-Nr.: 220738
Optionen
Optionen
Basisinformationen
Adresse:
Pannierstrasse 58
DE-12047 Berlin
DE-12047 Berlin
Preis:
549.000 €
Wohnfläche ca.:
86 m²
Zimmeranzahl:
3,5
Weitere Informationen
Weitere Informationen
Wohnungstyp:
Etagenwohnung
Etage:
4
Etagenanzahl:
4
Provision:
3,57 % inklusive MwST
Küche:
Einbauküche
Bad:
Wanne, Fenster
Anzahl Schlafzimmer:
2
Anzahl Badezimmer:
1
Keller:
ja
Letzte Modernisierung/ Sanierung:
2010
Qualität der Ausstattung:
normal
Baujahr:
1900
Hausgeld:
342 €
Bodenbelag:
Dielen, Laminat
Heizung:
Zentralheizung
Befeuerungsart:
Fernwärme
Energieausweistyp:
Verbrauchsausweis
Energieverbrauchs-Kennwert:
118 kWh/(m²*a)
Energieverb. Warmwasser enthalten:
ja
Beschreibung
Beschreibung
Objektbeschreibung:
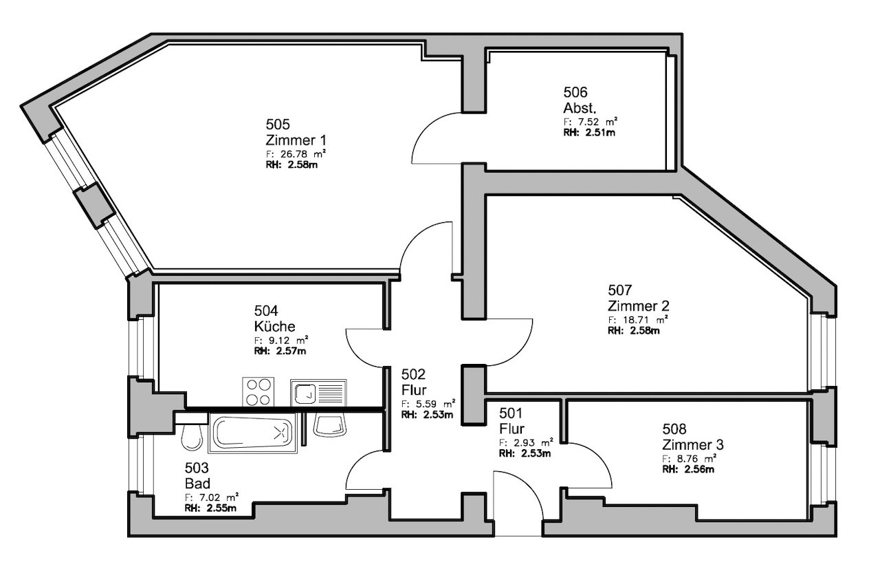
Mittendrin im quirligen Reuterkiez zwischen Hermannplatz und Weserstrasse.
Es handelt sich um eine helle, bezugsfreie 3,5 -Zimmer -Wohnung im 4. OG eines Berliner Altbaus der Jahrhundertwende.
Eine Besonderheit ist der freie Ausblick ins Grüne in die Hinterhöfe.
Die Wohnung ist ca. 86 qm groß und verfügt über 3 separate
Zimmer, Küche, Bad sowie einen sehr großen Abstellraum, auch
als Office oder begehbarer Schrank möglich.
Die Wohnung ist bezugsfrei und kann sofort bezogen werden.
Es handelt sich um eine helle, bezugsfreie 3,5 -Zimmer -Wohnung im 4. OG eines Berliner Altbaus der Jahrhundertwende.
Eine Besonderheit ist der freie Ausblick ins Grüne in die Hinterhöfe.
Die Wohnung ist ca. 86 qm groß und verfügt über 3 separate
Zimmer, Küche, Bad sowie einen sehr großen Abstellraum, auch
als Office oder begehbarer Schrank möglich.
Die Wohnung ist bezugsfrei und kann sofort bezogen werden.
Ausstattung:
- sanierter Altbau
- Laminat, teilweise Dielen
- 3 Zi + Küche + Bad
- großer Abstellraum (halbes Zimmer ohne Fenster)
- Zentralheizung (Fernwärme)
und zentrale Warmwasserversorgung
- Kellerraum vorhanden
- Verkauf im Ist-Zustand
- Laminat, teilweise Dielen
- 3 Zi + Küche + Bad
- großer Abstellraum (halbes Zimmer ohne Fenster)
- Zentralheizung (Fernwärme)
und zentrale Warmwasserversorgung
- Kellerraum vorhanden
- Verkauf im Ist-Zustand
Lage:
Nordneukölln, Reuterkiez unweit Hermannplatz und Hasenheide.
Viele kleine Cafés, Restaurants, Galerien und Läden befinden sich in der Nachbarschaft. Das Angebot ist vielfältig. Am Maybachufer findet jeweils am Dienstag und Freitag der bekannte Wochenmarkt statt. Am Wochenende lädt der Design- und Kunstmarkt zum Flanieren ein.
Die U-Bahnlinien 7 und 8 sorgen für eine verkehrstechnisch optimale Anbindung. Station: Hermannplatz
Viele kleine Cafés, Restaurants, Galerien und Läden befinden sich in der Nachbarschaft. Das Angebot ist vielfältig. Am Maybachufer findet jeweils am Dienstag und Freitag der bekannte Wochenmarkt statt. Am Wochenende lädt der Design- und Kunstmarkt zum Flanieren ein.
Die U-Bahnlinien 7 und 8 sorgen für eine verkehrstechnisch optimale Anbindung. Station: Hermannplatz
Sonstiges:
Der Anbau eines Balkons wird geprüft. Die möglichen Kosten, ca 15.000 € sind nicht im Kaufpreis enthalten.
Provision:
Für den Nachweis und die Vermittlung eines Kaufvertrages dieser Immobilie ist eine Maklerprovision in Höhe von 3 % des Kaufpreises zzgl. 19 % gesetzlicher MwSt. zu zahlen. Der Verkäufer zahlt der Firma Berlinpoint Immobilien GmbH eine Provision in gleicher Höhe. Der Anspruch ist fällig mit der Unterzeichnung eines notariellen Kaufvertrages zwischen Verkäufer und Käufer, zahlbar innerhalb von 14 Tagen nach Rechnungslegung.
Anmerkung:
Die in unseren Angeboten, Nachweisen und sonstigen Mitteilungen und herausgegebenen Informationen gemachten Angaben beruhen auf den Informationen, die uns von Verkäufern, Vermietern oder Dritten mitgeteilt wurden. Für die Richtigkeit und Vollständigkeit der Angaben kann keine Gewähr bzw. Haftung übernommen werden. Ein Zwischenverkauf und Irrtümer sind vorbehalten.
Verbraucherinformation:
Online-Streitbeilegung gemäß Art. 14 Abs. 1 ODR-VO: Die Europäische Kommission stellt eine Plattform zur Online-Streitbeilegung (OS) bereit, die Sie hier finden: https://ec.europa.eu/consumers/odr
Verbraucherinformation:
Online-Streitbeilegung gemäß Art. 14 Abs. 1 ODR-VO: Die Europäische Kommission stellt eine Plattform zur Online-Streitbeilegung (OS) bereit, die Sie hier finden: https://ec.europa.eu/consumers/odr
AGB:
Wir weisen auf unsere Allgemeinen Geschäftsbedingungen hin. Diese Geschäftsbedingungen werden zusammen mit der Exposébeschreibung Bestandteil der beiderseitigen Vereinbarungen. Durch weitere Inanspruchnahme unserer Leistungen erklären Sie die Kenntnis und Ihr Einverständnis.
Ihr Ansprechpartner
Zurück zur Übersicht















