Property 16 from 39
Next property
Previous property
Back to the overview
Back to the overview
Next property
Previous property
Back to the overviewBerlin: SOLD + Charming Altbau - original details - top location -
Property ID: 2190512
Options
Options
Basic information
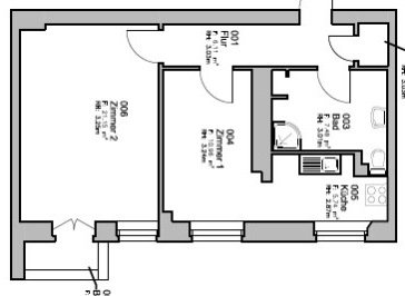
Address:
Lenausstrasse 7
DE-12047 Berlin
DE-12047 Berlin
District:
Neukölln
Price:
Price on request
Living space:
53,21 sq. m.
No. of rooms:
2
Details
Details
Type of apartment:
Single storey apartment
Storey:
2
Number of floors:
4
Subject to commission:
yes
Kitchen:
Fitted kitchen
Bathroom:
Bathtub
Balcony:
1
Basement:
yes
Quality of fittings:
Regular
Year of construction:
1910
Monthly costs all-inclusive:
113 €
Floor covering:
Floorboards
Heating:
One storey heating
Type of heating system:
Gas
Type of energy certificate:
demand certificate - valid from 21.02.2025 to 20.02.2035
Energy efficiency class:
D
Final energy requirement:
101 kWh/(m²*a)
Your contact person
Back to the overview

















