Property 7 from 35
Next property
Previous property
Back to the overview
code
Back to the overview
Next property
Previous property
Back to the overviewBerlin: + Kreuzkölln + Flat to renovate
Property ID: 2190504
Options
Options
Basic information
Address:
Hobrechtstraße 63
DE-12047 Berlin
DE-12047 Berlin
District:
Neukölln
Price:
469.000 €
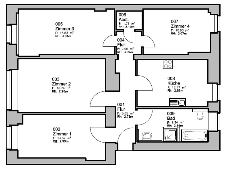
Living space:
87 sq. m.
No. of rooms:
4
Details
Details
Type of apartment:
Ground floor
Number of floors:
4
Subject to commission:
yes
Kitchen:
Fitted kitchen
Bathroom:
Shower, Bathtub, Window
Number of bathrooms:
1
Terrace:
1
Basement:
yes
Last renovation/ refurbishment:
2012
Quality of fittings:
Regular
Year of construction:
1910
Monthly costs all-inclusive:
166 €
Floor covering:
Laminate
Condition:
Well kept
Heating:
One storey heating
Type of heating system:
Gas
Type of energy certificate:
demand certificate - valid from 21.02.2025 to 20.02.2035
Energy efficiency class:
D
Final energy requirement:
101 kWh/(m²*a)
Your contact person
Back to the overview





















