Objekt 12 von 14
Nächstes Objekt
Vorheriges Objekt
Zurück
code
Zurück
Nächstes Objekt
Vorheriges Objekt
ZurückBerlin: + Kreuzkölln + Altbaucharme + Bel Etage + WG tauglich
Objekt-Nr.: 220709
Optionen
Optionen
Basisinformationen
Adresse:
Pannierstrasse 58
DE-12047 Berlin
DE-12047 Berlin
Preis:
630.000 €
Wohnfläche ca.:
99 m²
Zimmeranzahl:
3
Weitere Informationen
Weitere Informationen
Wohnungstyp:
Etagenwohnung
Etage:
1
Etagenanzahl:
5
Provisionspflichtig:
ja
Provision:
3,57 % inklusive MwST
Küche:
Einbauküche
Bad:
Wanne
Balkon:
1
Keller:
ja
Letzte Modernisierung/ Sanierung:
2018
Qualität der Ausstattung:
normal
Baujahr:
1900
Hausgeld:
382 €
Bodenbelag:
Dielen
Heizung:
Zentralheizung
Befeuerungsart:
Fernwärme
Energieausweistyp:
Verbrauchsausweis
Energieverbrauchs-Kennwert:
118 kWh/(m²*a)
Energieverb. Warmwasser enthalten:
ja
Beschreibung
Beschreibung
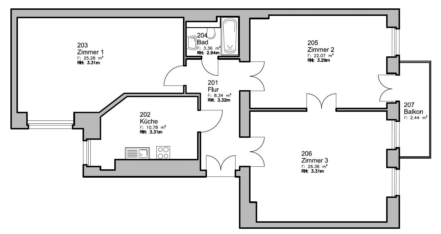
Objektbeschreibung:
Mittendrin im quirligen Reuterkiez zwischen Hermannplatz und Weserstrasse.
Die Wohnung befindet sich im 1. OG des Vorderhauses.
Das Balkonzimmer sowie ein weiterer Wohnraum sind straßenseitig nach Südosten ausgerichtet.
Das Schlafzimmer (ca. 25 qm) hat ein großes Südfenster zum Hof. Große Flügeltüren verbinden die strassenseitigen Räume und den Flurbereich. Die Küche ist mit ca. 11 qm sehr geräumig, die vorhandene Einbauküche ist im Kaufpreis enthalten.
Durch Verlegen der Küche in eines der beiden Zimmer könnte die Wohnung zu einer 4-Zimmer-Wohnung umgebaut werden.
Abgeschliffene Holzdielen, Altbautüren, Deckenstuck und Holzkasten-Fenster verleihen der Wohnung Altbaucharme.
Die Wohnung ist sehr hell und bekommt direktes Sonnenlicht.
Die Wohnung befindet sich im 1. OG des Vorderhauses.
Das Balkonzimmer sowie ein weiterer Wohnraum sind straßenseitig nach Südosten ausgerichtet.
Das Schlafzimmer (ca. 25 qm) hat ein großes Südfenster zum Hof. Große Flügeltüren verbinden die strassenseitigen Räume und den Flurbereich. Die Küche ist mit ca. 11 qm sehr geräumig, die vorhandene Einbauküche ist im Kaufpreis enthalten.
Durch Verlegen der Küche in eines der beiden Zimmer könnte die Wohnung zu einer 4-Zimmer-Wohnung umgebaut werden.
Abgeschliffene Holzdielen, Altbautüren, Deckenstuck und Holzkasten-Fenster verleihen der Wohnung Altbaucharme.
Die Wohnung ist sehr hell und bekommt direktes Sonnenlicht.
Ausstattung:
- sanierter Altbau
- 3 Zi + Küche + Bad
- Balkon
- Holzdielen
- Altbautüren
- Deckenstuck
- Raumhöhe ca. 3,30 m
- Zentralheizung (Fernwärme)
und zentrale Warmwasserversorgung
- Kellerraum vorhanden
- Verkauf im Ist-Zustand
- 3 Zi + Küche + Bad
- Balkon
- Holzdielen
- Altbautüren
- Deckenstuck
- Raumhöhe ca. 3,30 m
- Zentralheizung (Fernwärme)
und zentrale Warmwasserversorgung
- Kellerraum vorhanden
- Verkauf im Ist-Zustand
Lage:
Nordneukölln, Reuterkiez unweit Hermannplatz und Hasenheide.
Viele kleine Cafés, Restaurants, Galerien und Läden befinden sich in der Nachbarschaft. Das Angebot ist vielfältig. Am Maybachufer findet jeweils am Dienstag und Freitag der bekannte Wochenmarkt statt. Am Wochenende lädt der Design- und Kunstmarkt zum Flanieren ein.
Die U-Bahnlinien 7 und 8 sorgen für eine verkehrstechnisch optimale Anbindung. Station: Hermannplatz
Viele kleine Cafés, Restaurants, Galerien und Läden befinden sich in der Nachbarschaft. Das Angebot ist vielfältig. Am Maybachufer findet jeweils am Dienstag und Freitag der bekannte Wochenmarkt statt. Am Wochenende lädt der Design- und Kunstmarkt zum Flanieren ein.
Die U-Bahnlinien 7 und 8 sorgen für eine verkehrstechnisch optimale Anbindung. Station: Hermannplatz
Provision:
Für den Nachweis und die Vermittlung eines Kaufvertrages dieser Immobilie ist eine Maklerprovision in Höhe von 3 % des Kaufpreises zzgl. 19 % gesetzlicher MwSt. zu zahlen. Der Verkäufer zahlt der Firma Berlinpoint Immobilien GmbH eine Provision in gleicher Höhe. Der Anspruch ist fällig mit der Unterzeichnung eines notariellen Kaufvertrages zwischen Verkäufer und Käufer, zahlbar innerhalb von 14 Tagen nach Rechnungslegung.
Anmerkung:
Die in unseren Angeboten, Nachweisen und sonstigen Mitteilungen und herausgegebenen Informationen gemachten Angaben beruhen auf den Informationen, die uns von Verkäufern, Vermietern oder Dritten mitgeteilt wurden. Für die Richtigkeit und Vollständigkeit der Angaben kann keine Gewähr bzw. Haftung übernommen werden. Ein Zwischenverkauf und Irrtümer sind vorbehalten.
Verbraucherinformation:
Online-Streitbeilegung gemäß Art. 14 Abs. 1 ODR-VO: Die Europäische Kommission stellt eine Plattform zur Online-Streitbeilegung (OS) bereit, die Sie hier finden: https://ec.europa.eu/consumers/odr
Verbraucherinformation:
Online-Streitbeilegung gemäß Art. 14 Abs. 1 ODR-VO: Die Europäische Kommission stellt eine Plattform zur Online-Streitbeilegung (OS) bereit, die Sie hier finden: https://ec.europa.eu/consumers/odr
AGB:
Wir weisen auf unsere Allgemeinen Geschäftsbedingungen hin. Diese Geschäftsbedingungen werden zusammen mit der Exposébeschreibung Bestandteil der beiderseitigen Vereinbarungen. Durch weitere Inanspruchnahme unserer Leistungen erklären Sie die Kenntnis und Ihr Einverständnis.
Ihr Ansprechpartner
Zurück





















